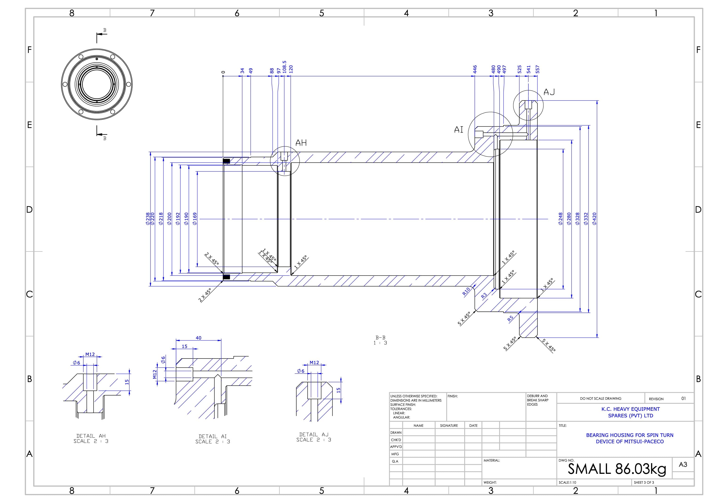
Reverse Engineering - Bearing Housing
Executed reverse engineering projects to digitize and replicate legacy components for which no CAD data was available. Using a combination of 3D scanning and precision measurement tools, existing parts were meticulously analyzed to create accurate, manufacturable CAD models in Solidworks. This process also involved creating 3D printed prototypes to verify form, fit, and function before committing to final production.

Alternate view of the bearing housing CAD model.

Original bearing housing component for reverse engineering.

3D CAD model rendering of the reverse-engineered bearing housing.